Loading...

Murcia Montevida – Edificio Natura Vallis 2 – Piso tipo F

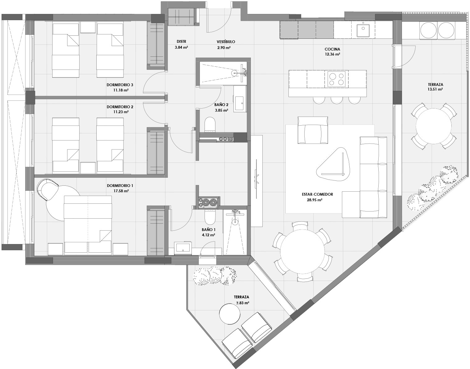
ESCALERA 3 VIVIENDA TIPO F 3 DORMITORIOS
SUP. CONSTRUIDA 134.39 M²
SUP. ÚTIL VIVIENDA 96.02 M²
SUP. ÚTIL TOTAL 117.51 M²
SUP. TERRAZA 21.49 M²
Murcia Montevida – Edificio Natura Vallis 2, 3 dormitorios, Piso tipo F

NOTA LEGAL: la presente información, perspectivas, documentación gráfica y calidades son orientativas. La sociedad vendedora se reserva el derecho a efectuar las modificaciones que fuesen motivadas por exigencias técnicas, legales o comerciales. El mobiliario es meramente orientativo y no está incluido en el precio.

3 dormitorios Tipo F

Vivienda de 3 dormitorios y 2 baños, con una superficie de 130 m2 con amplio salón, cocina semi integrada y lavadero independiente. Cuenta con dos terrazas en planta con un total de 21 m2 con fantásticas vistas al parque natural.

Tras el éxito de nuestro anterior proyecto, nos complace presentarle NATURA VALLIS 2, nuestro nuevo residencial en Montevida, la urbanización de referencia en Murcia, situada a tan solo cinco minutos del centro.

En el corazón de esta comunidad única, estamos creando un nuevo residencial cerrado con amplias zonas comunes, piscinas y jardines. Se compone de viviendas de 2, 3 y 4 dormitorios, cuidadosamente diseñadas para ofrecer el máximo confort, con cocinas amuebladas, climatización completa, amplias terrazas y acabados de alta calidad.

Viva en un entorno privilegiado con impresionantes vistas al Parque Natural El Valle, donde podrá respirar aire puro y disfrutar de una tranquilidad y seguridad inigualables.

¡Le invitamos a descubrir su nuevo hogar: Natura Vallis!