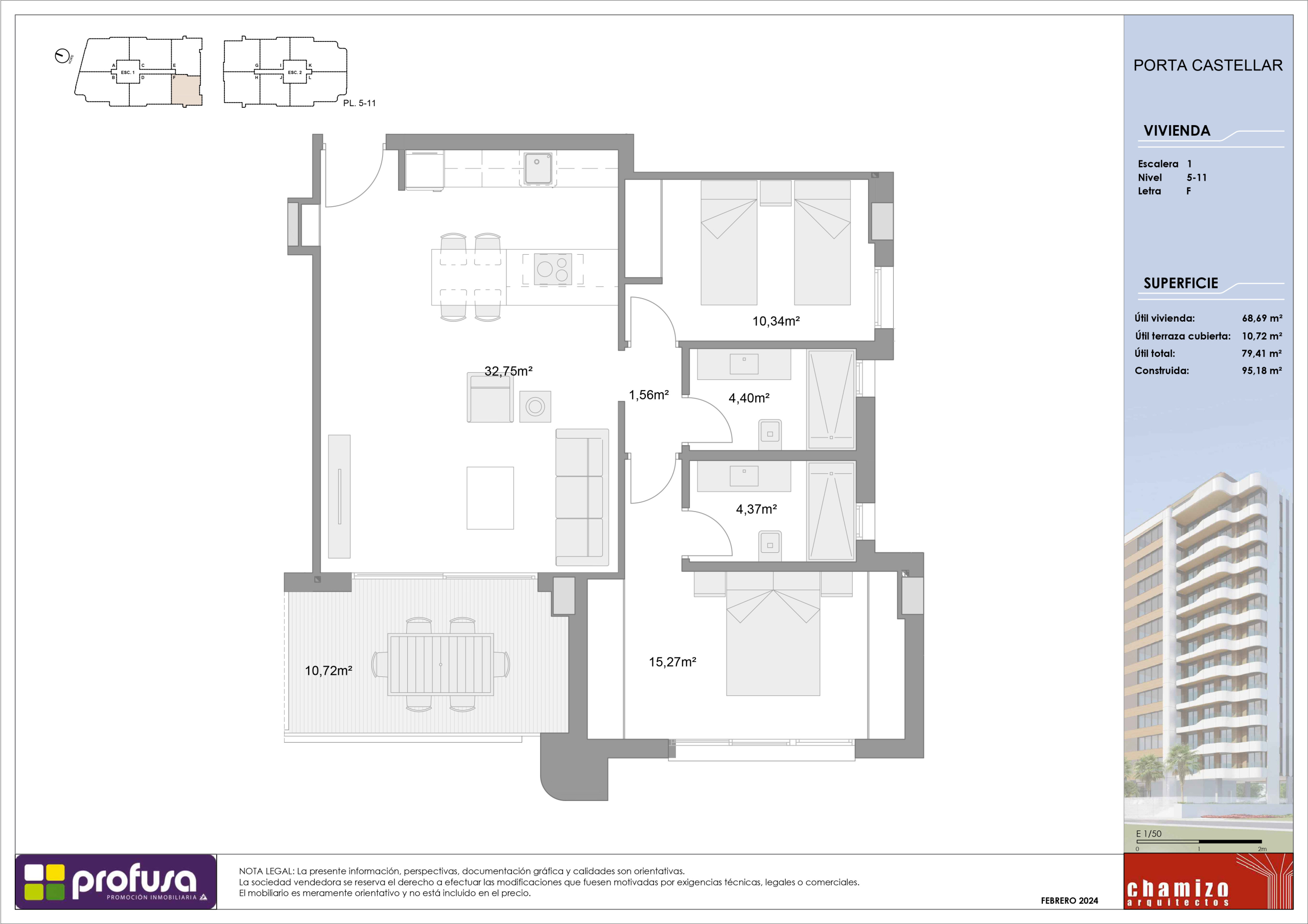
Residencial Porta Castellar – 2 dormitorios – Piso tipo F
| ESCALERA 1 VIVIENDA TIPO F |
2 DORMITORIOS |
|---|---|
| SUP. CONSTRUIDA | 95.18 M² |
| SUP. ÚTIL TOTAL | 79.41 M² |
| SUP. ÚTIL VIVIENDA | 68.69 M² |
| SUP. TERRAZA | 10.72 M² |

NOTA LEGAL: la presente información, perspectivas, documentación gráfica y calidades son orientativas. La sociedad vendedora se reserva el derecho a efectuar las modificaciones que fuesen motivadas por exigencias técnicas, legales o comerciales. El mobiliario es meramente orientativo y no está incluido en el precio.
2 dormitorios Tipo F
Vivienda en esquina con dos dormitorios y dos baños, una superficie construida de casi 100 m2 y vistas a piscina. Cuenta con cocina abierta al salón dando un espacio de más de 32 m2 conectado con una terraza de 10 m2. El dormitorios principal disfruta de dos amplios armarios y baño en suite.
La vivienda incluye una plaza de garaje y un trastero.

